Welcome to the Archives of the Paul Rudolph Heritage Foundation. The purpose of this online database is to function as a tool for scholars, students, architects, preservationists, journalists and other interested parties. The archive consists of photographs, slides, articles and publications from Rudolph’s lifetime; physical drawings and models; personal photos and memorabilia; and contemporary photographs and articles.

Unless otherwise noted, all images and drawings are copyright © The Estate of Paul Rudolph and The Paul Rudolph Heritage Foundation. Please speak with a representative of the Paul Rudolph Heritage Foundation to get permission to use any drawings or photos. Drawings, sketches and other materials produced by Rudolph’s architectural office at the Library of Congress are maintained there for preservation, but the intellectual property rights belong to the Paul Rudolph Estate and Ernst Wagner, founder of the Paul Rudolph Heritage Foundation.

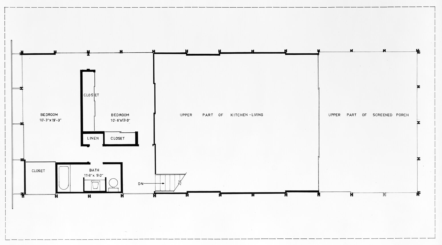
Harkavy Residence.jpg

LOCATION
Address: 113 Morningside Drive
City: Sarasota
State: Florida
Zip Code: 34236
Nation: United States

 

STATUS
Type: Residence
Status: Built

TECHNICAL DATA
Date(s): 1957-1958
Site Area: 9,191 ft² (953.87 m²)
Floor Area: 2 bed, 2 bath, 2,936 ft² (272.76 m²); 2006 addition - 1 bed, 1.5 bath
Height:
Floors (Above Ground): 2
Building Cost:

PROFESSIONAL TEAM
Client: Martin R. Harkavy (1916-2000) and Lillian P. Harkavy (-1971)
Architect: Paul Rudolph (1957-1958); John Quinn (2006)
Associate Architect: 
Landscape:
Structural:
MEP:
QS/PM:

SUPPLIERS
Contractor: James Stroud
Subcontractor(s):

Harkavy Residence

  • In 1954, Martin Harkavy came to Sarasota from New York with his wife, Lillian, in a yellow Studebaker car with $5,000. “After looking around, we rented a cottage on Siesta Key that was designed by Paul Rudolph,” Harkavy told the Herald-Tribune’s Brooksie Bergen in 1998. “The key wasn’t heavily populated as yet, and only a few people took advantage of those wide white beaches.”

  • In 1946, Ralph Twitchell and Paul Rudolph designed a home nearby for Martin’s uncle Alexander S. Harkavy.

  • The privacy screen is the most distinguishing physical feature of the house.

  • This project was designed to distinctly privatize the internal life of the occupants by positioning the main living space towards the back of the house. The entrance is pushed under the protruding bedroom space, shielding it from the public view.

  • The general contractor for the residence is James Stroud, who runs a construction firm in Sarasota. He builds several other Rudolph projects such as the 1952 Sanderling Beach Club, and the 1953 Davis Residence. Prior to opening his own firm, James Stroud worked for Jack Twitchell’s firm Associated Builders.

  • The residence is featured in the Sarasota Garden Club’s Founder’s Circle distinguished homes exhibit in February of 1959.

  • In February of 1959 the residence is awarded honorable mention in the Homes for Better Living Awards sponsored by the American Institute of Architects in cooperation with House and Home and McCall’s Magazine. The awards jury honored the home “because of its simplicity and informality.”

  • The residence is featured in House and Home in June 1959 and Arts+Architecture in June 1959.

  • Between 1984 and 2006 the original carport is enclosed as is the screened porch at the rear of the home.

  • The residence is renovated in 1996.

  • On April 21, 2004 the residence is sold to Karen and Hugo Kitzis.

  • In 2006 a two-story addition is added to the eastern elevation of the home, replacing an earlier addition similar in size and location by architect Jack West. The architect for the 2006 addition is John Quinn. According to a Historic Designation Report written in 2019, “the addition is compatible with the materials and scale of the original structure but can be clearly differentiated by the difference in architectural details including a reduced sense of horizontality and smaller overall mass. The structural system of the addition matches the original in form, though the roof overhand and rafter tails are much shorter. This further minimizes the visual impact of the addition in comparison to the original.”

  • On December 22, 2010 the residence is listed for sale by Coldwell Banker Residential Real Estate for $2,800,000 USD. The price is reduced to $2,500,000 USD on May 21, 2011.

  • On June 07, 2012 the listing is removed.

  • On June 29, 2012 the residence is sold for $1,700,000 USD to Robert A. Essner and Anne M. Essner.

  • Historic Designation Application File No. 20-HD-03 for the residence is prepared by David Baber and Lorrie Muldowney on December 10, 2019.

  • The application is submitted during a Historic Preservation Board Hearing on January 14, 2020.

  • The application is approved by a 5-0 vote during a regular meeting of the Sarasota City Commission on February 18, 2020.

DRAWINGS - Design Drawings / Renderings

DRAWINGS - Construction Drawings

DRAWINGS - Shop Drawings

PHOTOS - Project Model

PHOTOS - During Construction

PHOTOS - Completed Project

PHOTOS - Current Conditions

LINKS FOR MORE INFORMATION
The Martin Harkavy House on the Sarasota Architectural Foundation website

RELATED DOWNLOADS
12.10.2019 Historic Designation Application No. 20-HD-03 - by David Baber and Lorrie Muldowney, commissioned by Robert A. Essner and Anne M. Essner
02.18.2020 Sarasota City Commission Meeting Minutes

PROJECT BIBLIOGRAPHY
Domin, Christopher, et al. Paul Rudolph: the Florida Houses. Princeton Architectural Press, 2002.