Welcome to the Archives of the Paul Rudolph Heritage Foundation. The purpose of this online database is to function as a tool for scholars, students, architects, preservationists, journalists and other interested parties. The archive consists of photographs, slides, articles and publications from Rudolph’s lifetime; physical drawings and models; personal photos and memorabilia; and contemporary photographs and articles.

Unless otherwise noted, all images and drawings are copyright © The Estate of Paul Rudolph and The Paul Rudolph Heritage Foundation. Please speak with a representative of the Paul Rudolph Heritage Foundation to get permission to use any drawings or photos. Drawings, sketches and other materials produced by Rudolph’s architectural office at the Library of Congress are maintained there for preservation, but the intellectual property rights belong to the Paul Rudolph Estate and Ernst Wagner, founder of the Paul Rudolph Heritage Foundation.

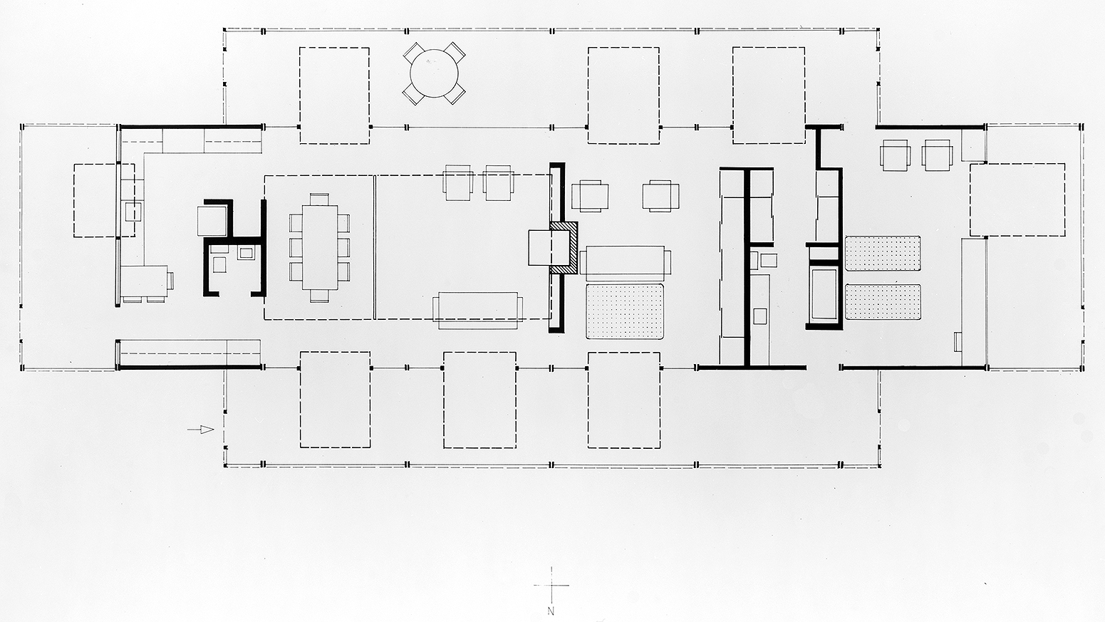
Davidson Residence.jpg

LOCATION
Address: 615 65th Street Court Northwest
City: Bradenton
State: Florida
Zip Code: 34209
Nation: United States

 

STATUS
Type: Residence
Status: Built

TECHNICAL DATA
Date(s): 1953
Site Area: 33,541 s.f. (0.77 acre)
Floor Area: 3 beds, 3.5 baths; 5,303 s.f.
Height:
Floors (Above Ground): 1
Building Cost:

PROFESSIONAL TEAM
Client:
Architect: Paul Rudolph
Associate Architect: 
Landscape:
Structural:
MEP:
QS/PM:

SUPPLIERS
Contractor:
Subcontractor(s):

Davidson Residence

  • This is a two bedroom house with four attached screened-porches. The porches are protected with natural vinyl plastic sheets.

  • The house is designed with a series of adjustable planes to match the varying climate and supply ventilation. These adjustable planes are later replaced with floor-to-ceiling flush panel doors.

  • The main living space has a low vault with clerestory windows at each end.

  • The residence is featured in Architectural Record, November 1956.

  • The residence is renovated in 1986 and went through extreme modifications.

  • The house is sold on May 21, 2002 for $690,000 USD.

DRAWINGS - Design Drawings / Renderings

DRAWINGS - Construction Drawings

DRAWINGS - Shop Drawings

PHOTOS - Project Model

PHOTOS - During Construction

PHOTOS - Completed Project

PHOTOS - Current Conditions

LINKS FOR MORE INFORMATION

RELATED DOWNLOADS

PROJECT BIBLIOGRAPHY
“Vaulted Ceiling Four Porches in the South: Residence of Mr. and Mrs. Davidson” Architectural Record, November 1956, pp. 177-181.

Domin, Christopher, et al. Paul Rudolph: the Florida Houses. Princeton Architectural Press, 2002.