Welcome to the Archives of the Paul Rudolph Heritage Foundation. The purpose of this online database is to function as a tool for scholars, students, architects, preservationists, journalists and other interested parties. The archive consists of photographs, slides, articles and publications from Rudolph’s lifetime; physical drawings and models; personal photos and memorabilia; and contemporary photographs and articles.
Unless otherwise noted, all images and drawings are copyright © The Estate of Paul Rudolph and The Paul Rudolph Heritage Foundation. Please speak with a representative of the Paul Rudolph Heritage Foundation to get permission to use any drawings or photos. Drawings, sketches and other materials produced by Rudolph’s architectural office at the Library of Congress are maintained there for preservation, but the intellectual property rights belong to the Paul Rudolph Estate and Ernst Wagner, founder of the Paul Rudolph Heritage Foundation.
LOCATION
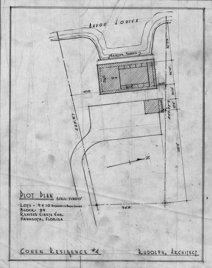
Address: 101 Garden Lane
City: Sarasota
State: Florida
Zip Code: 34242
Nation: United States
STATUS
Type: Residence
Status: Built
TECHNICAL DATA
Date(s): 1953-1955
Site Area: 26,925 s.f.
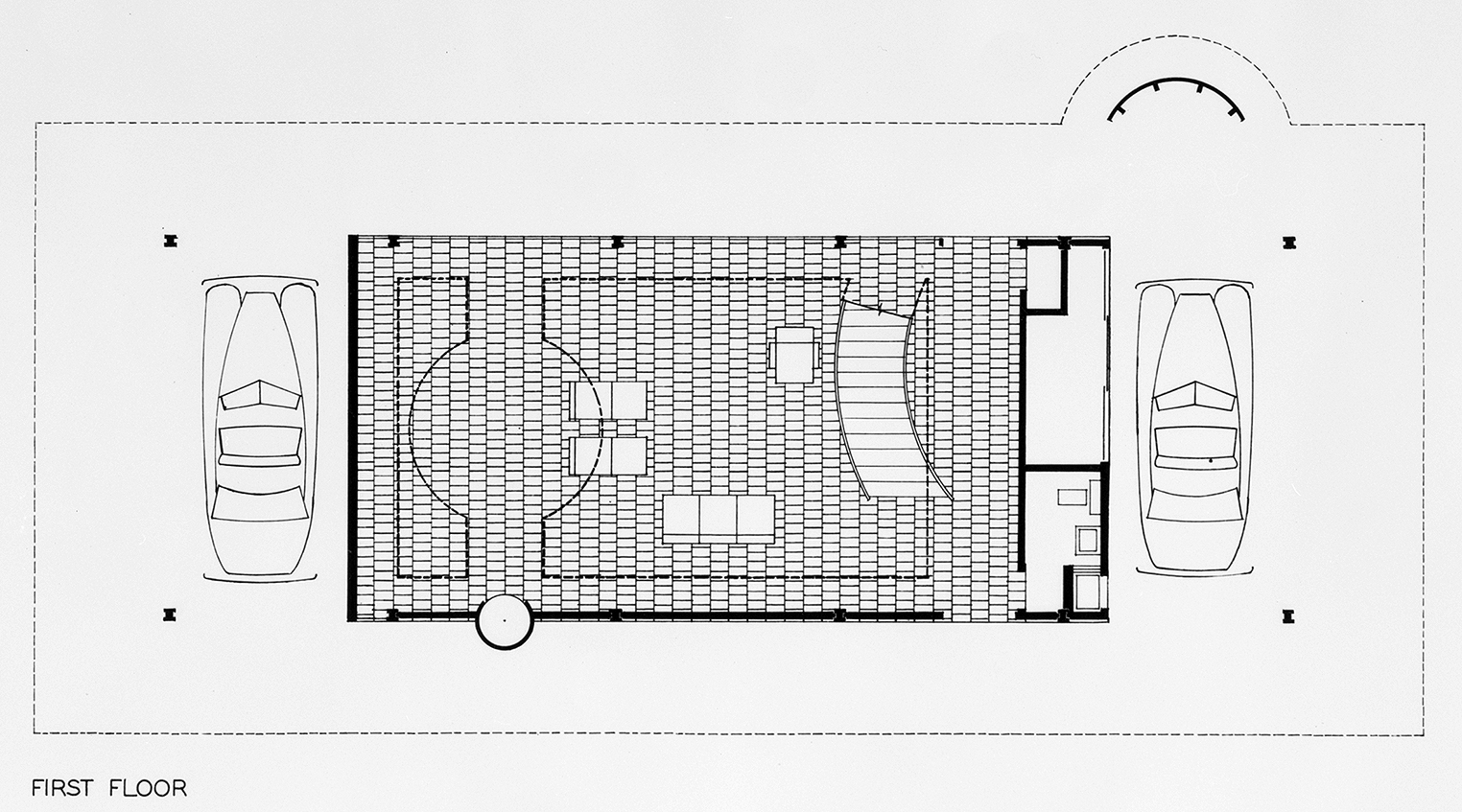
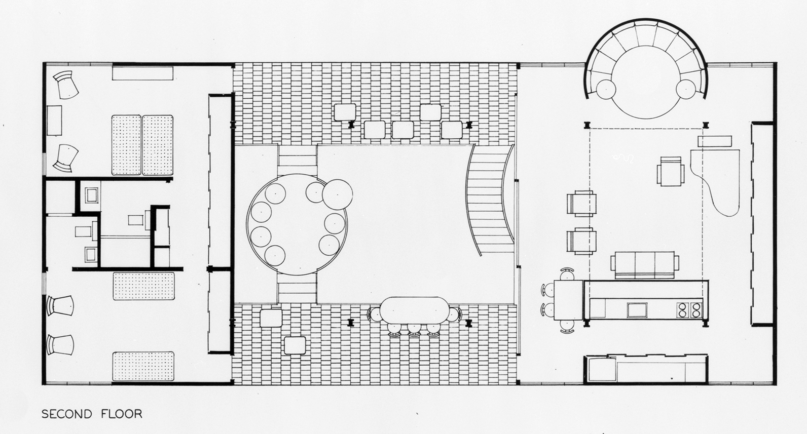
Floor Area: 2 beds 2.5 baths 2,455 s.f.
Height:
Floors (Above Ground): 1
Building Cost: $20,000 (1954)
PROFESSIONAL TEAM
Client: David and Eleene Cowen
Architect: Paul Rudolph
Associate Architect:
Landscape:
Structural:
MEP:
QS/PM:
SUPPLIERS
Contractor: Harold Pickett, Monostructure, Inc.
Subcontractor(s):
Cohen Residence
The project is a residence for former City of Sarasota Mayor, David Cohen and his wife. They are local music patrons and David is the co-founder of the Florida West Coast Symphony.
Large closets and dressing rooms are created to eliminate the need for extra furniture in the bedroom.
The plan has no interior partitions except for bedrooms and baths, and features a large multi-purpose living area.
The house is featured in Architectural Record May 1956, Progressive Architecture January 1955 and Arts+Architecture September 1954.
In 2004 the residence is purchased by Martie Lieberman
In 2005 the Vross Family and Jonathan Parks win a Historic Preservation Award from the National Trust for Cohen House interior work done up to 2001, while Parks works for Seibert Architects.
In 2006 the residence is restored by Seibert Architects with assistance from Bert Brosmith FAIA, manager of Rudolph's office in 1955 during the original construction. Tim Seibert wins an AIA FL award for the restoration later in the same year.
The residence is sold in 2009 to Arlene La Marca.
The house is right. Not fancy - very ample and straightforward - practical - not ornate - no lost space, NONE - no silly walls with curves or dead end rooms.
Perhaps the most interesting feature of the house is the sunken area in the living room which is surrounded by cushions on the floor and additional cushions for back supports. We are much interested in the simplification and elimination of furniture and this seems to be a step. We feel strongly that too much modern furniture is so sculpturesque that it is difficult to make a truly quiet room.
DRAWINGS - Design Drawings / Renderings
DRAWINGS - Construction Drawings
DRAWINGS - Shop Drawings
PHOTOS - Project Model
PHOTOS - During Construction
PHOTOS - Completed Project
PHOTOS - Current Conditions
LINKS FOR MORE INFORMATION
The Cohen Residence on the Sarasota Architectural Foundation website
RELATED DOWNLOADS
PROJECT BIBLIOGRAPHY
“Rudolph Wins Award for David Cohen Home.” Sarasota News, January 15, 1955. p. 9
“Sarasota Architect Is Design Contest Winner.” Sarasota Herald Tribune, January 15, 1955. p. 5
“Rudolph Design Award Winner.” Sarasota News, January 22, 1955. p. 17