Welcome to the Archives of the Paul Rudolph Heritage Foundation. The purpose of this online database is to function as a tool for scholars, students, architects, preservationists, journalists and other interested parties. The archive consists of photographs, slides, articles and publications from Rudolph’s lifetime; physical drawings and models; personal photos and memorabilia; and contemporary photographs and articles.

Unless otherwise noted, all images and drawings are copyright © The Estate of Paul Rudolph and The Paul Rudolph Heritage Foundation. Please speak with a representative of the Paul Rudolph Heritage Foundation to get permission to use any drawings or photos. Drawings, sketches and other materials produced by Rudolph’s architectural office at the Library of Congress are maintained there for preservation, but the intellectual property rights belong to the Paul Rudolph Estate and Ernst Wagner, founder of the Paul Rudolph Heritage Foundation.

Walker Residence.jpg

LOCATION
Address: 4143 West Gulf Drive
City: Sanibel
State: Florida
Zip Code: 33957
Nation: United States

 

STATUS
Type: Residential
Status: Project

TECHNICAL DATA
Date(s): 1951
Site Area: 
Floor Area:
Height:
Floors (Above Ground):
Building Cost:

PROFESSIONAL TEAM
Client:
Architect: Ralph S. Twitchell
Associate Architect: Paul M. Rudolph
Landscape:
Structural:
MEP:
QS/PM:

SUPPLIERS
Contractor:
Subcontractor(s):

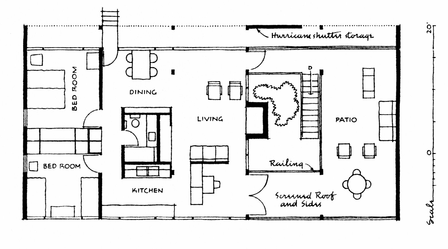
Walker Residence

  • The structure is an elongated space with open glass walls, running along its length on the sides.

  • It suspends over the ground by standing on the tall pilotis. And the space left underneath, is intended to be used as parking space.

  • It has a screened patio that takes up most of the living space.

  • It remains unbuilt.

DRAWINGS - Design Drawings / Renderings

DRAWINGS - Construction Drawings

DRAWINGS - Shop Drawings

PHOTOS - Project Model

PHOTOS - During Construction

PHOTOS - Completed Project

PHOTOS - Current Conditions

LINKS FOR MORE INFORMATION

RELATED DOWNLOADS

PROJECT BIBLIOGRAPHY
Domin, Christopher, et al. Paul Rudolph: the Florida Houses. Princeton Architectural Press, 2002.

“Chronological List of Works by Paul Rudolph, 1946-1974.” Architecture & Urbanism, Jan. 1975, p. 150.