Welcome to the Archives of the Paul Rudolph Heritage Foundation. The purpose of this online database is to function as a tool for scholars, students, architects, preservationists, journalists and other interested parties. The archive consists of photographs, slides, articles and publications from Rudolph’s lifetime; physical drawings and models; personal photos and memorabilia; and contemporary photographs and articles.

Unless otherwise noted, all images and drawings are copyright © The Estate of Paul Rudolph and The Paul Rudolph Heritage Foundation. Please speak with a representative of the Paul Rudolph Heritage Foundation to get permission to use any drawings or photos. Drawings, sketches and other materials produced by Rudolph’s architectural office at the Library of Congress are maintained there for preservation, but the intellectual property rights belong to the Paul Rudolph Estate and Ernst Wagner, founder of the Paul Rudolph Heritage Foundation.

Revere House.jpg

LOCATION
Address: 100 Ogden Street
City: Siesta Key
State: Florida
Zip Code: 34242
Nation: United States

 

STATUS
Type: Residential
Status: Built

TECHNICAL DATA
Date(s): 1948
Site Area: 29,607 ft² (2,750.6 m²)
Floor Area:
Height:
Floors (Above Ground): 1
Building Cost: $18,400

PROFESSIONAL TEAM
Client: Mrs. Roberta Healy Finney / Revere Copper Company
Architect: Ralph S. Twitchell
Associate Architect: Paul M. Rudolph
Landscape:
Structural: Samuel Napp
MEP:
QS/PM:

SUPPLIERS
Contractor: Lamolithic Industries
Subcontractor(s): Revere Copper & Brass Company, Inc.

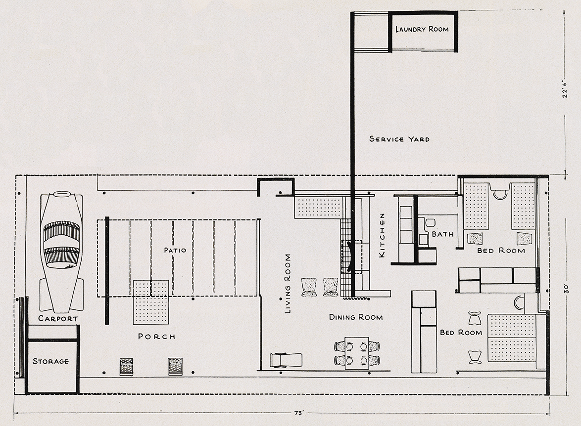
REVERE Quality House

  • In 1948, Rudolph designs the home and drafts all of the construction documents. The design illustrates how copper could be used in residential design and is part of an innovative program to meet the housing needs of returning World War II veterans.

  • The home is constructed in 1949.

  • Ralph Twitchell moves in with the client after it the home is built. He lives there until his death in 1978.

  • The house is built in cooperation with The Architectural Forum, Revere Copper and Brass Co. (Company Copper and Brass) and builders Lamolithic Industries.

  • The residence is featured in House and Garden in August 1949, Architectural Forum in October 1948 and Architectural Review in November 1948.

  • The residence wins the National Honor Award in 1949 from the American Institute of Architects.

  • On May 20, 2003 the property is sold for $740,000.

  • On June 09, 2003 the property is listed for $940,000.

  • On January 05, 2005 the property is sold for $850,000.

  • In 2005, the Revere Quality House is designated as a historic site by the City of Sarasota.

  • In 2005, the original Revere Quality House is renovated, followed by the construction of an adjacent 5 bed, 4.5 bath 4,755 ft² (441.75 m²) new home, known as the ‘companion house’ or ‘revere addition’ by architect Guy Peterson. The new addition, which meets flood-zone rules, is completed in 2007.

  • On October 30, 2006 the property is listed for $4,575,000.

  • On March 26, 2008 the original Revere Quality House is added to the list of the National Register of Historic Places.

  • On June 27, 2009 the property is listed for $3,700,000. On March 27, 2010 the price is changed to $3,290,000. On December 26, 2010 the price is changed to $2,950,000.

  • The residence wins the Award of Excellence for Historic Restoration in 2011 from the American Institute of Architects (Florida).

  • On April 06, 2011 the property is listed for $2,300,000 and sold for $2,100,000 on August 31, 2011.

  • On February 12, 2015 the property is listed for $4,250,000. On July 06, 2015 the price is changed to $3,950,000.

  • The property is sold for $2,100,000 on September 16, 2015.

  • On November 02, 2015 the property is listed for $3,500,000. On February 03, 2016 the price is changed to $3,100,000 and to $2,750,000 on September 26, 2015.

  • On January 03, 2017 the property is sold for $2,500,000.

The Revere House embodied a long-term interest among technologists in developing a viable, economical concrete technology for building houses in Florida that would resist moisture, termites, and hurricanes.
— Domin, Christopher, et al. Paul Rudolph: the Florida Houses. Princeton Architectural Press, 2002.

DRAWINGS - Design Drawings / Renderings

DRAWINGS - Construction Drawings

DRAWINGS - Shop Drawings

PHOTOS - Project Model

PHOTOS - During Construction

PHOTOS - Completed Project

PHOTOS - Current Conditions

LINKS FOR MORE INFORMATION
The Revere Quality House on the Sarasota Architectural Foundation website

RELATED DOWNLOADS
National Register Designation Report - United States Department of the Interior, March 26, 2008

PROJECT BIBLIOGRAPHY
Charles R. Smith. Paul Rudolph and Louis Kahn: A Bibliography. The Scarecrow Press, Inc., 1987.

Christopher Domin and Joe King. Paul Rudolph: The Florida Houses. Princeton Architectural Press, 2002.

“Chronological List of Works by Paul Rudolph, 1946-1974.” Architecture and Urbanism, no. 49, Jan. 1975.

“Four 1948 Houses.” House and Garden, no. 96, 96, Aug. 1949.

Francis de N. Schroeder. “Year’s Work.” Interiors, no. 109, 109, Aug. 1949.

“Lamolithic Steel Forms.” Architectural Forum, no. 89, 89, Oct. 1948.

“Maison De Vacances En Floride.” Architecture D’Aujourd’hui, no. 20, July 1950.

Paul Rudolph. “Revere House Grouping.” Architectural Forum, no. 89, 89, Dec. 1948.

“Progressive Architecture for Housing - 1952.” Progressive Architecture, no. 33, 33, Jan. 1952.

“Revere Quality House.” Architecture and Urbanism, no. 80, 80, July 1977.

Timothy Rohan. The Architecture of Paul Rudolph. Yale University Press, 2014.

“Twelve Architect Suggestions for the Merchant Builder.” Architectural Forum, no. 94, 94, Jan. 1951.