Welcome to the Archives of the Paul Rudolph Heritage Foundation. The purpose of this online database is to function as a tool for scholars, students, architects, preservationists, journalists and other interested parties. The archive consists of photographs, slides, articles and publications from Rudolph’s lifetime; physical drawings and models; personal photos and memorabilia; and contemporary photographs and articles.

Unless otherwise noted, all images and drawings are copyright © The Estate of Paul Rudolph and The Paul Rudolph Heritage Foundation. Please speak with a representative of the Paul Rudolph Heritage Foundation to get permission to use any drawings or photos. Drawings, sketches and other materials produced by Rudolph’s architectural office at the Library of Congress are maintained there for preservation, but the intellectual property rights belong to the Paul Rudolph Estate and Ernst Wagner, founder of the Paul Rudolph Heritage Foundation.

1956.03-01.01.0001.jpg

LOCATION
Address:
City: Miami
State: Florida
Zip Code:
Nation: United States

STATUS
Type: Office
Status: Project

TECHNICAL DATA
Date(s): 1956
Site Area:
Floor Area:
Height:
Floors (Above Ground):
Building Cost:

PROFESSIONAL TEAM
Client:
Architect: Paul Rudolph
Associate Architect: 
Landscape:
Structural:
MEP:
QS/PM:

SUPPLIERS
Contractor:
Subcontractor(s):

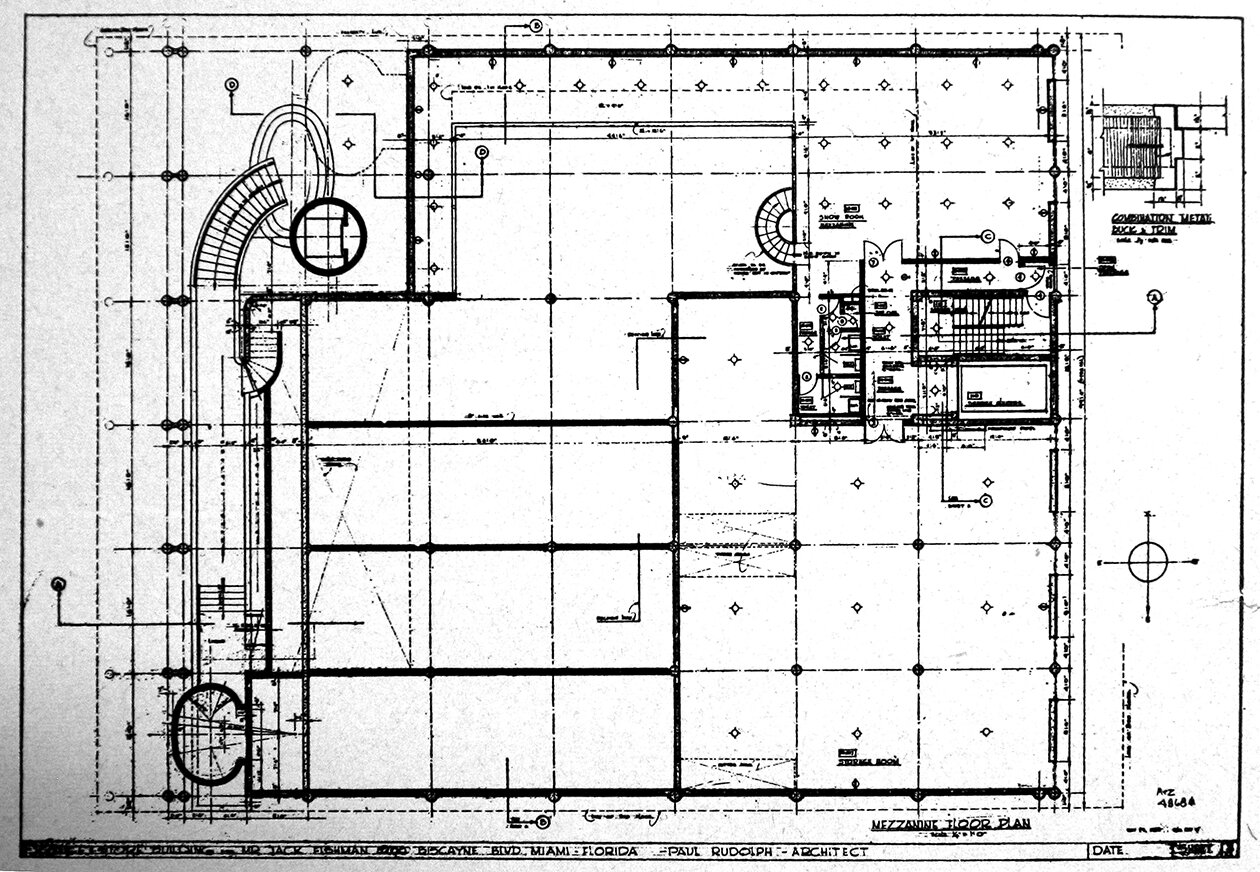
Office Building for the Bramlett Equipment Company

  • The distinct physical feature of this project is the bold disposition of cast-in-place concrete. In cast-in-place technology, the concrete is poured in the place where it will set as the structural part of the building. This strengthens the building, provides insulation and speeds up the construction time.

  • A grand staircase leads the people from the entry foyer to an open-space, brightly lighted mezzanine floor, connecting to the exhibition room- overlooking the landscape of the Biscayne Boulevard.

  • A series of eight monument columns covers the frontal facade of the structure, giving a sense of order on the exterior to balance the level of complexity on the interior.

DRAWINGS - Design Drawings / Renderings

DRAWINGS - Construction Drawings

DRAWINGS - Shop Drawings

PHOTOS - Project Model

PHOTOS - During Construction

PHOTOS - Completed Project

PHOTOS - Current Conditions

LINKS FOR MORE INFORMATION

RELATED DOWNLOADS

PROJECT BIBLIOGRAPHY