Welcome to the Archives of the Paul Rudolph Heritage Foundation. The purpose of this online database is to function as a tool for scholars, students, architects, preservationists, journalists and other interested parties. The archive consists of photographs, slides, articles and publications from Rudolph’s lifetime; physical drawings and models; personal photos and memorabilia; and contemporary photographs and articles.

Unless otherwise noted, all images and drawings are copyright © The Estate of Paul Rudolph and The Paul Rudolph Heritage Foundation. Please speak with a representative of the Paul Rudolph Heritage Foundation to get permission to use any drawings or photos. Drawings, sketches and other materials produced by Rudolph’s architectural office at the Library of Congress are maintained there for preservation, but the intellectual property rights belong to the Paul Rudolph Estate and Ernst Wagner, founder of the Paul Rudolph Heritage Foundation.

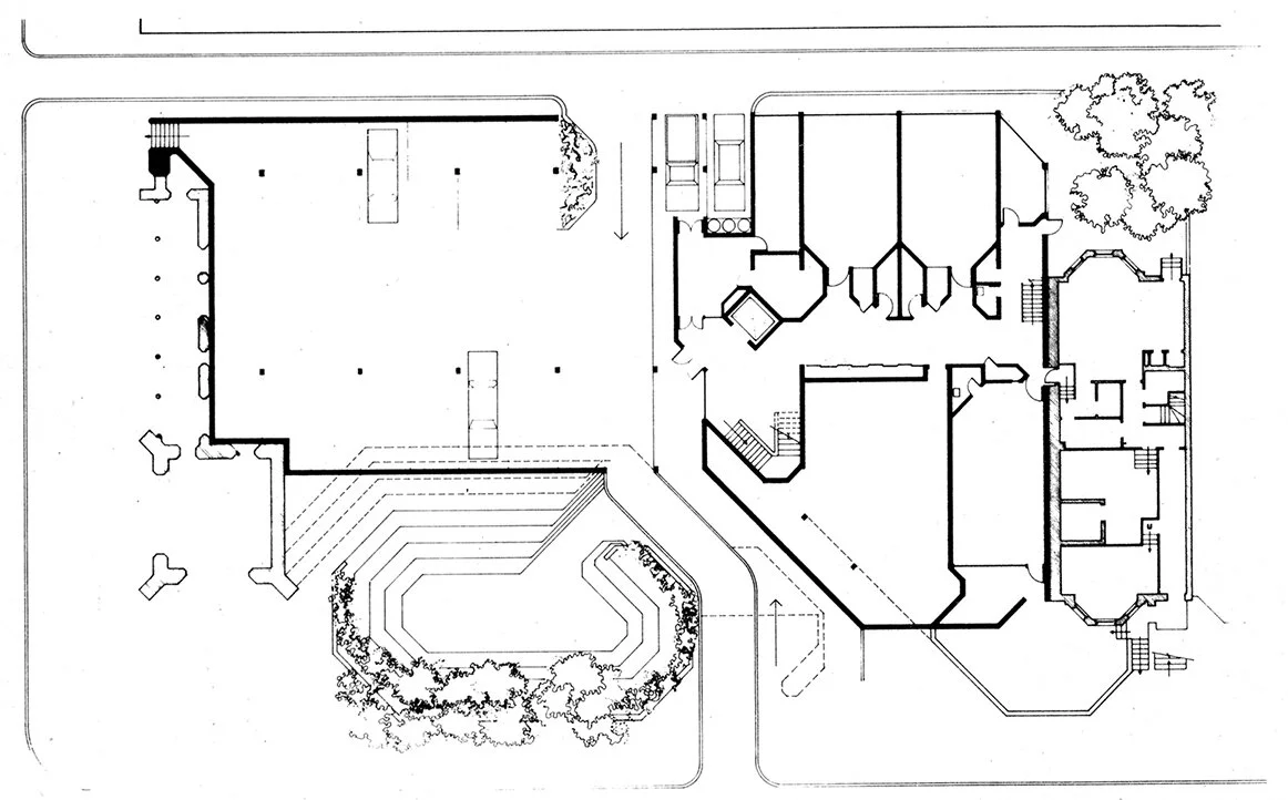
1968.09 Exterior 6.jpg

LOCATION
Address: 66 Marlborough Street
City: Boston
State: Massachusetts
Zip Code: 02116
Nation: United States
Google Maps Address: 42.353686, -71.074754

STATUS
Type: Religious
Status: Built

TECHNICAL DATA
Date(s): 1967-1972
Site Area: 18,740 s.f.
Floor Area: 24,672 s.f.
Height:
Floors (Above Ground):
Building Cost:

PROFESSIONAL TEAM
Client: First Church in Boston
Architect: Paul Rudolph
Associate Architect: 
Landscape:
Structural: Nichols, Norton & Zaldastani
MEP: Mccarron, Hufnagle & Vegkley (mechanical); R.W. Sullivan (plumbing)
QS/PM:

SUPPLIERS
Contractor:
Subcontractor(s):

First Church of Boston

The original church, built in 1868, was burned to the ground during a fire on March 29th 1968.

Architects considered for the project included Cambridge 7, H W Eisenberg, Walter Gropius, Huygers & Tappé, Carl Koch, José Luis Sert, Hugh Shepley,  Hugh Stubbins (Unitarian Church, Concord NY) and Benjamin Thompson.

Architects who were later asked to present proposals included Marcel Breuer; Joseph Schiffer, (Unitarian Church, Andover MA); Joseph Eldredge (Strickland, Brigham & Eldredge) and Paul Rudolph. Walter Gropius declined to submit a proposal. The congregation was asked to vote its preference.

Paul Rudolph incorporated the remains of the local ‘puddingstone’ tower, steeple and facade of the original 1868 Ware & van Brunt building to serve as the East walls of the new building. The charred wood frame of the original rose window opening was left to serve as a reminder of the 1968 fire.

The new building was dedicated in 1972. 

The space was designed as a great kaleidoscope for light.
— Paul Rudolph statement about the First Church project
The nearest thing to a non-building that I’ve ever done.
— Paul Rudolph in Progressive Architecture, 1973.

DRAWINGS - Design Drawings / Renderings

DRAWINGS - Construction Drawings

DRAWINGS - Shop Drawings

PHOTOS - Project Model

PHOTOS - During Construction

PHOTOS - Completed Project

PHOTOS - Current Conditions

LINKS FOR MORE INFORMATION
www.firstchurchboston.org

RELATED DOWNLOADS

PROJECT BIBLIOGRAPHY
Boston Society of Architects. (1976). Architecture Boston. Barre, Massachusetts. pp. 67-68.
Yamashita, Tsukasa. “Chronological list of works by Paul Rudolph, 1946-1974.” il., sec. Architecture and Urbanism 49 (January 1975): 164.
Murphy, James A. “First and Second Church in Boston: rebirth in back bay.” (1973). Progressive Architecture, (54), pp.44-49.
Lyndon, Donlyn. The City Observed: Boston. A Guide to the Architecture of the Hub. New York: Random House, 1982. il. pp. 125-126.